63
$699,900 Sale
Listed 1 hour
2275 Bonnie Place
· 5
· 2.0
· 0
· 2046
Key Facts
Key facts for 2275 Bonnie Place
Property Type
House, House
Parking
Garage: No, 0 parking
MLS #
10346654
Size
2046 sqft
Basement
-
Listed on
-
Lot size
-
Tax
-
Days on Market
-
Year Built
1968
Maintenance Fee
-
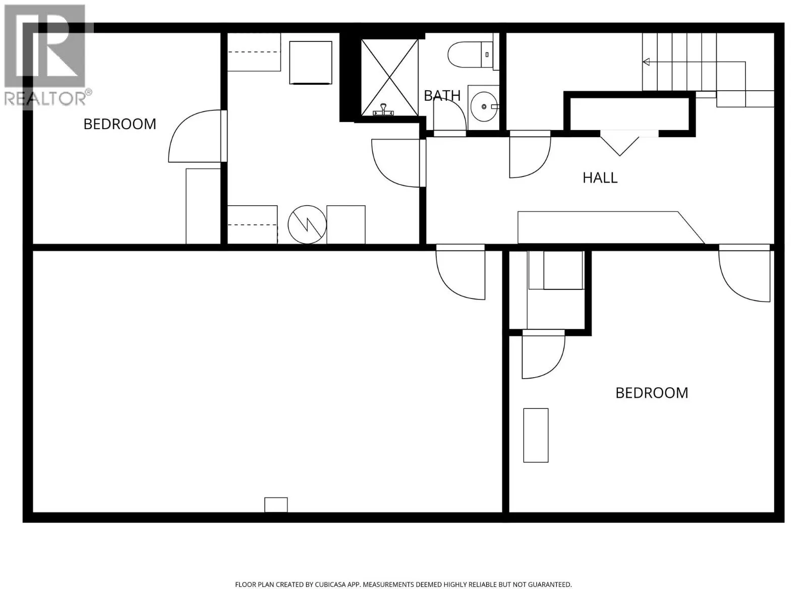
Description
Well appointed and beautifully updated 5 bed, 2 bath home on a large, flat corner lot in one of Kamloops’ most desirable family neighbourhoods. Close to schools, parks, and amenities, this property offers everyday comfort with future potential, including possible subdivision. The bright, open-concep...t main floor features a fully renovated kitchen with granite island, quality appliances, and stylish finishes. New laminate flooring, paint, baseboards, hardware, pot lighting, and mostly updated windows create a fresh, inviting feel. The updated main bath offers a jetted tub and subway tile. Large bonus room accessed from the patio from the kitchen could be perfect for a play room or extra storage. Downstairs is fully finished with two large bedrooms, an extended rec room (with well-window potential), and a deluxe laundry room. With newer drywall and flooring, the basement could easily convert to a 2 bedroom suite for extra income. 1 room offers flex/studio space with water and plumbing for home biz possibilities. Outside, enjoy a private, fully fenced and irrigated yard perfect for kids, pets, or future additions like a shop or pool. Extra parking (including RV), a storage shed, and a roof approx. 7 years old complete this exceptional property. A rare chance to secure a home that offers room to grow, space to create, and the flexibility to shape it around your family’s next chapter. All measurements approximate. (id:10452)
Similar Properties (No results)
Room Types
3pc Bathroom
-
Dimensions 7'1'' x 5'0''
35.42 sqft
4pc Bathroom
-
Dimensions 5'3'' x 8'8''
45.5 sqft
Bedroom
-
Dimensions 13'7'' x 13'5''
182.24 sqft
Listing courtesy of: RE/MAX Real Estate (Kamloops)
This REALTOR.ca listing content is owned and licensed by REALTOR® members of The Canadian Real Estate Association.